Hös - Sibylla-Weiß-Weg 11
alle Bilder
360°
Kontakt
Weitere
Lage
Wetter
Geoportal
Streetview
Google Earth
Menü
alle Bilder
360°
Kontakt
Lage
Wetter
Geoportal
Streetview
Google Earth
Previous
Next
EG
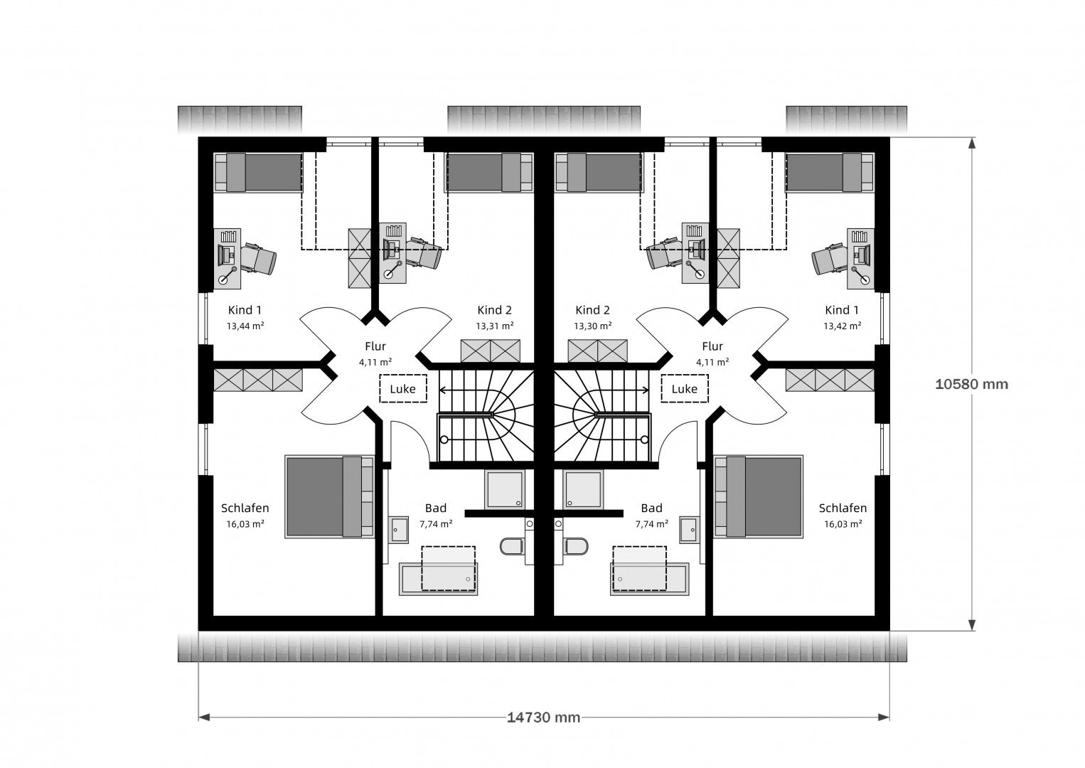
OG
EG
OG
DH_5
Außen
DH_5
Family_M_871x871
City_L
Family_L
S-Manns: Haus+ELW
2AVG-Twin
Innen
DH_5
Family_M_871x871
City_L
Family_L
S-Manns: Haus+ELW
Total
|
Plan
|