Hös - Sibylla-Weiß-Weg 11
alle Bilder
360°
Kontakt
Weitere
Lage
Wetter
Geoportal
Streetview
Google Earth
Menü
alle Bilder
360°
Kontakt
Lage
Wetter
Geoportal
Streetview
Google Earth
Family_M_871x871
Innen
Family_M_871x871
Previous
Next
Loading...
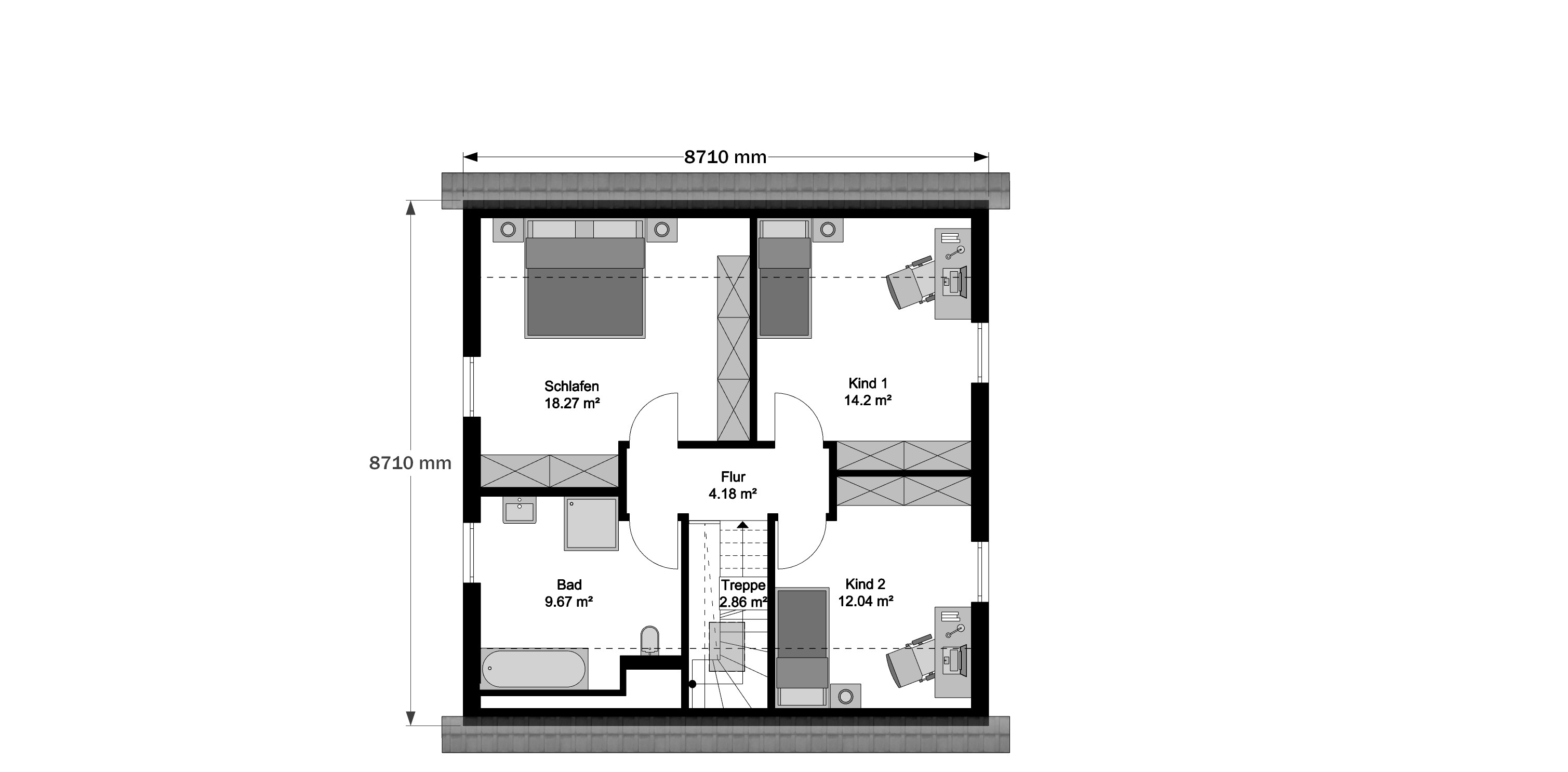
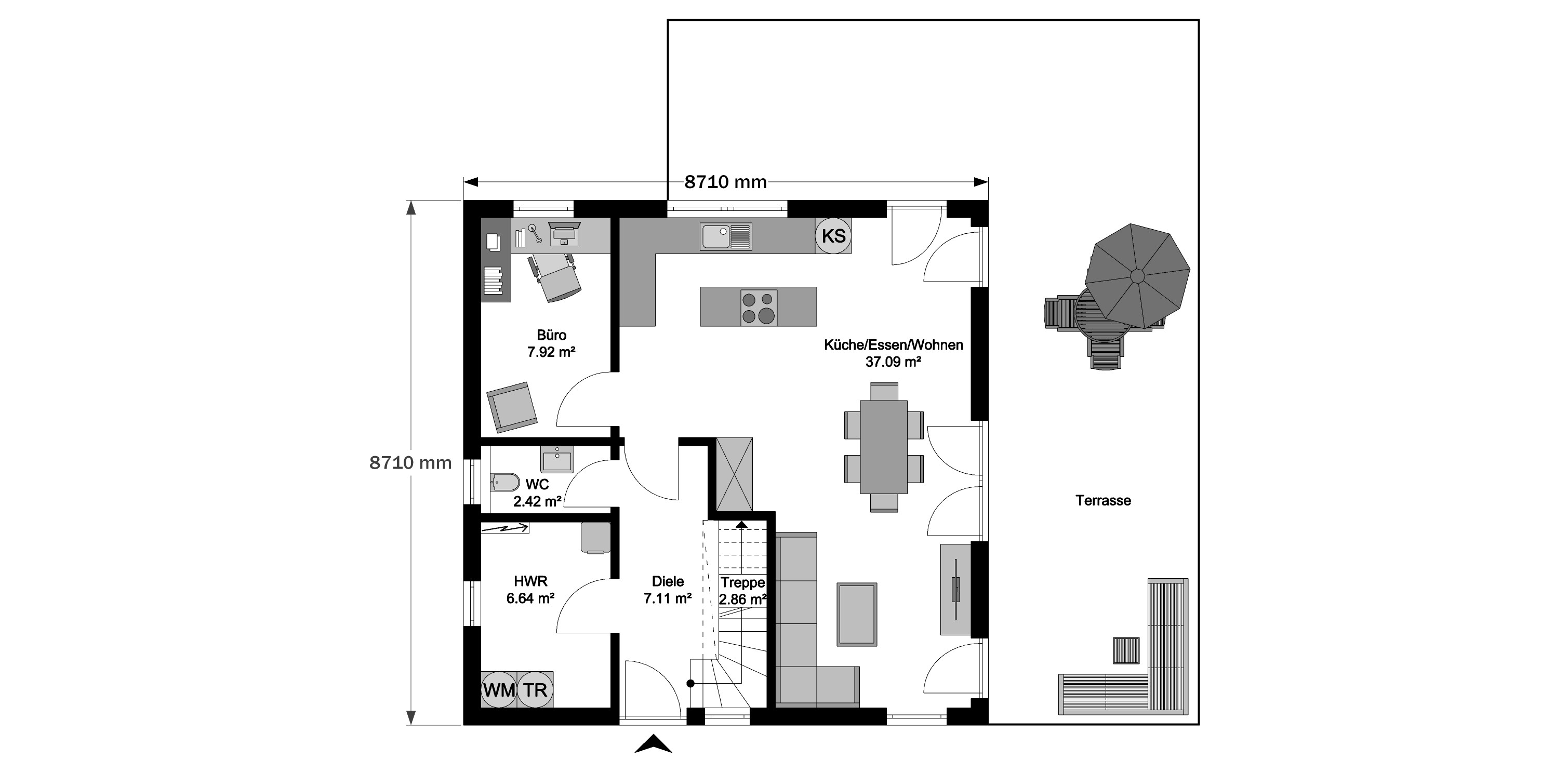
EG
OG
EG
OG
Total
|